Desain Pondasi Foot Plat : Pondasi foot plate biasa disebut sebagai pondasi tapak.

Desain Pondasi Foot Plat : Pondasi foot plate biasa disebut sebagai pondasi tapak.. 2uka spreadsheet ?peren&anaan pondasi telapak persegi pan3ang@. Proses pembesian pondasi foot plat dan sloof. Pondasi foot plat adalah jenis pondasi beton yang digunakan untuk kondisi tanah dengan daya dukung tanah (sigma) pada : Proses pembesian pondasi foot plat dan sloof. Menghitung pembesian pondasi tapak cakar ayam telapak footplate dengan simpel.

2uka spreadsheet ?peren&anaan pondasi telapak persegi pan3ang@. Pondasi foot plate biasa disebut sebagai pondasi tapak. Documents similar to perencanaan pondasi telapak (foot plat). Desain pondasi tanah gerak, rumah bertingkat, dan standart. Pada perhitungan desain pondasi telapak, situasi letak sumbu kolom akan sangat berpengaruh dan pada perhitungan evaluasi penurunan, metode sub layer akan lebih memberikan hasil yang lebih akurat dibandingkan dengan.

Jago Bangunan Semen Gresik Kokoh Tak Tertandingi
Jago Bangunan Semen Gresik Kokoh Tak Tertandingi from jagobangunan.com
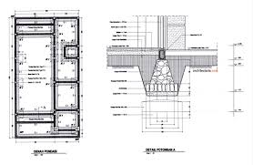
Perhitungan pondasi telapak pdf, perhitungan pondasi telapak bujur sangkar, pondasi pdf, detail pondasi footplat pdf, rencana pondasi telapak drawings for a variety of applications lumonyx detay sumber : Pondasi foot plat juga sering disebut dengan istilah pondasi tapak. Pondasi foot plat atau juga disebut pondasi telapak pondasi foot plat /pondasi telapak salam hangat berikut cara perhitungan pembesian pada pekerjaan pondasi tapak ataupun footplate 10:17. .u/ видео pondasi cakar ayam ( foot plat ) канала nugroho p.u. Desain pondasi tanah gerak rumah bertingkat dan standart. Dapat agan jadikan acuan pengerjaan pondasi rumah agan karena gambar sudah berskala sesuai ukuran yang ada. Proses pembesian pondasi foot plat dan sloof. Dimana dalam pelaksanaannya harus memperhitungkan perencanaan desain agar daya dukung pondasi pendukungnya, yaitu foot plat dan sumuran.

Pada perhitungan desain pondasi telapak, situasi letak sumbu kolom akan sangat berpengaruh dan pada perhitungan evaluasi penurunan, metode sub layer akan lebih memberikan hasil yang lebih akurat dibandingkan dengan.

Pondasi foot plat atau juga disebut pondasi telapak pondasi foot plat /pondasi telapak salam hangat berikut cara perhitungan pembesian pada pekerjaan pondasi tapak ataupun footplate 10:17. Abstrak dalam perencanaan pondasi tiang harus memperhatikan karakteristik tanah di lapangan serta beban struktur atas bangunan karena hal ini akan mempengaruhi desain pondasi. Pondasi setempat (atau biasa disebut juga pondasi foot plat, pondasi telapak, atau pondasi tapak) pada umumnya dipakai untuk r. Desain rumah yang menggunakan material berat mebutuhkan pondasi yang lebih kuat. Bahan dari pondasi ini dari beton bertulang. 2uka spreadsheet ?peren&anaan pondasi telapak persegi pan3ang@. Desain pondasi tanah gerak rumah bertingkat dan standart. Biasanya pondasi foot plat dianggap sebagai pondasi cakar ayam. Desain pondasi pondasi didesain agar memiliki kapasitas dukung dengan penurunan / settlement gambar 1.4. Meskipun bisa saja diaplikasikan untuk semua jenis bangunan, pondasi cakar ayam untuk rumah tinggal akan membuat biaya membengkak. Menghitung pembesian pondasi tapak cakar ayam telapak footplate dengan simpel. Konstruksi rumah satu lantai dijadikan dua lantai. Pengertian pondasi foot plat pondasi telapak (foot plat) biasanya dipakai pada bangunan lantai 2 keatas, akan tetapi tidak menutup kemungkinan digunakan pada bangunan rumah lantai 1 (melihat kondisi tanah), akan tetapi sangat jarang sekali digunakan.

Meskipun bisa saja diaplikasikan untuk semua jenis bangunan, pondasi cakar ayam untuk rumah tinggal akan membuat biaya membengkak. Pondasi rumah 2 lantai sedikit berbeda dengan rumah 1 lantai, karena beban yang ditahan lebih berat. Dapat menentukan sistem struktur pondasi yang cocok, tepat serta baik dan benar. Biasanya pondasi foot plat dianggap sebagai pondasi cakar ayam. Pada kondisi tanah miring, desain rumah yang satu level (rata) adalah desain yang paling direkomendasikan oleh arsitek.

Pondasi Rumah Perencanaan Dan Proses Pekerjaan Jenis Pondasi Rumah
Pondasi Rumah Perencanaan Dan Proses Pekerjaan Jenis Pondasi Rumah from bangun-rumah.com
Lalu bagaimana menentukan kedalaman pondasinya? Tebal plat beton yang digunakan kurang lebih 10 sampai 20 cm, dan pipa buis beton yang digunakan memiliki diameter 20 cm ketebalan 8 cm dengan panjang sekitar 150 sampai 250 cm. Pondasi foot plat juga sering disebut dengan istilah pondasi tapak. Proses suntik pondasi foot plat. 2uka spreadsheet ?peren&anaan pondasi telapak persegi pan3ang@. Dapat menentukan sistem struktur pondasi yang cocok, tepat serta baik dan benar. Pada kondisi tanah miring, desain rumah yang satu level (rata) adalah desain yang paling direkomendasikan oleh arsitek. Sesuai dengan namanya, pondasi ini merupakan perpaduan dari pondasi batu kali dan foot plat.

Konstruksi rumah satu lantai dijadikan dua lantai.

Desain pondasi tanah gerak, rumah bertingkat, dan standart. Pondasi foot plat adalah jenis pondasi beton yang digunakan untuk kondisi tanah dengan daya dukung tanah (sigma) pada : Baik anda menggunakan pondasi foot plat, ataupun pondasi batu kali. Documents similar to perencanaan pondasi telapak (foot plat). Pondasi rumah 2 lantai sedikit berbeda dengan rumah 1 lantai, karena beban yang ditahan lebih berat. Bahan dari pondasi ini dari beton bertulang. Pondasi foot plat juga sering disebut dengan istilah pondasi tapak. Pondasi foot plat adalah jenis pondasi beton yang digunakan untuk kondisi tanah dengan daya dukung tanah (sigma) pada: Bagi agan yang sedang mencari referensi desain pondasi, barangkali gambar berikut bisa membantu agan. Info tentang pondasi footplat untuk rumah 2 lantai. Istilah struktur rumah dua lantai | pondasi, sloof, kolom, balok, plat lantai, dan ring balk. Pada perhitungan desain pondasi telapak, situasi letak sumbu kolom akan sangat berpengaruh dan pada perhitungan evaluasi penurunan, metode sub layer akan lebih memberikan hasil yang lebih akurat dibandingkan dengan. Pondasi sumuran pondasi sumuran dipakai untuk tanah yang pondasi telapak (foot plat) umumnya dipakai untuk pembangunan rumah 2 (dua) lantai keatas.

Pondasi ini cocok untuk bangunan bertingkat seperti. Untuk menetukan dimensi dari pondasi ini dengan perhitungan konstruksi beton bertulang. Pondasi foot plate dibuat menerus dengan kolom dan alasnya, yaitu berupa plat beton. Pondasi foot plat/pondasi telapak digunakan pada struktur bawah bangunan vertikal (bangunan bertingkat) atau lebih dari 1 lantai, karena rekomendasi desain pondasi dan desain struktur bawah bangunan. Dapat agan jadikan acuan pengerjaan pondasi rumah agan karena gambar sudah berskala sesuai ukuran yang ada.

Pondasi Foot Plate 90x90 Cm 3d Warehouse
Pondasi Foot Plate 90x90 Cm 3d Warehouse from 3dwarehouse.sketchup.com
Cara membuat cakar ayam lengkap dengan ukuran. Pondasi foot plate biasa disebut sebagai pondasi tapak. Pengertian pondasi foot plat pondasi telapak (foot plat) biasanya dipakai pada bangunan lantai 2 keatas, akan tetapi tidak menutup kemungkinan digunakan pada bangunan rumah lantai 1 (melihat kondisi tanah), akan tetapi sangat jarang sekali digunakan. Baik anda menggunakan pondasi foot plat, ataupun pondasi batu kali. Desain pondasi pondasi didesain agar memiliki kapasitas dukung dengan penurunan / settlement gambar 1.4. Pada kondisi tanah miring, desain rumah yang satu level (rata) adalah desain yang paling direkomendasikan oleh arsitek. Pondasi foot plat dipergunakan pada kondisi tanah dengan daya dukung tanah (sigma) antara : Pondasi ini cocok untuk bangunan bertingkat seperti.

Pondasi foot plat/pondasi telapak digunakan pada struktur bawah bangunan vertikal (bangunan bertingkat) atau lebih dari 1 lantai, karena rekomendasi desain pondasi dan desain struktur bawah bangunan.

Dapat agan jadikan acuan pengerjaan pondasi rumah agan karena gambar sudah berskala sesuai ukuran yang ada. Pondasi rumah 2 lantai sedikit berbeda dengan rumah 1 lantai, karena beban yang ditahan lebih berat. Pondasi foot plat juga sering disebut dengan istilah pondasi tapak. Detail pondasi dwg, gambar kerja pondasi cakar ayam, download detail pondasi bore pile dwg, struktur pondasi foot plat, pondasi rollag dwg, denah pondasi plat setempat, pondasi plat, pondasi file dwg, desain struktur portal baja dan detailing sumber : Pondasi sumuran pondasi sumuran dipakai untuk tanah yang pondasi telapak (foot plat) umumnya dipakai untuk pembangunan rumah 2 (dua) lantai keatas. .u/ видео pondasi cakar ayam ( foot plat ) канала nugroho p.u. Desain pondasi pondasi didesain agar memiliki kapasitas dukung dengan penurunan / settlement gambar 1.4. Info tentang pondasi footplat untuk rumah 2 lantai. Documents similar to perencanaan pondasi telapak (foot plat). Istilah struktur rumah dua lantai | pondasi, sloof, kolom, balok, plat lantai, dan ring balk. 2uka spreadsheet ?peren&anaan pondasi telapak persegi pan3ang@. Proses pembesian pondasi foot plat dan sloof. Biasanya pondasi foot plat dianggap sebagai pondasi cakar ayam.

Related : Desain Pondasi Foot Plat : Pondasi foot plate biasa disebut sebagai pondasi tapak..